Ngày 30/9/2014, UBND tỉnh Quảng Ninh đã ban hành Quyết định số 2188/QĐ-UBND về việc phê duyệt “Quy hoạch chi tiết xây dựng di tích đền Cửa Ông, phường Cửa Ông, thành phố Cẩm Phả, tỉnh Quảng Ninh”.
.jpg)
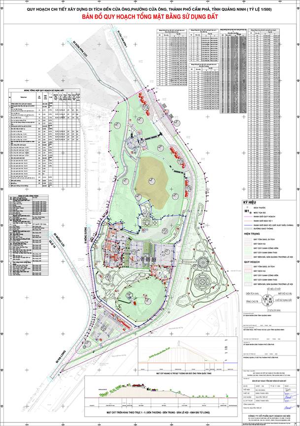
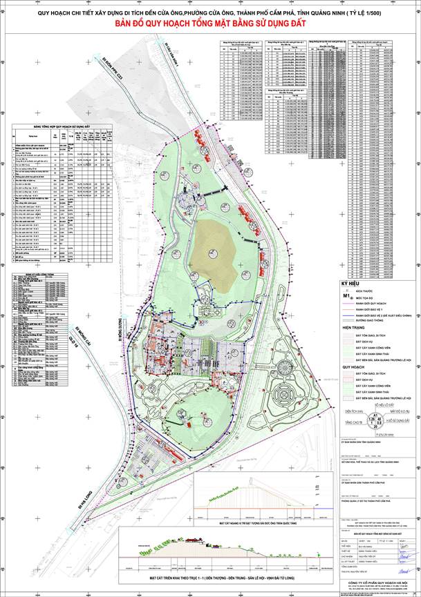
Bản đồ Quy hoạch tổng mặt bằng sử dụng đất
UBND thành phố Cẩm Phả công bố công khai “Quy hoạch chi tiết xây dựng di tích đền Cửa Ông, phường Cửa Ông, thành phố Cẩm Phả, tỉnh Quảng Ninh” bao gồm các hồ sơ, tài liệu sau đây:
1. Quyết định số 2188/QĐ-UBND ngày 30/9/2014 của UBND tỉnh Quảng Ninh “Về việc phê duyệt Quy hoạch chi tiết đền Cửa Ông, phường Cửa Ông, thành phố Cẩm Phả, tỉnh Quảng Ninh”.
2. Các bản đồ quy hoạch:
- Bản đồ Quy hoạch tổng mặt bằng sử dụng đất;
.jpg)
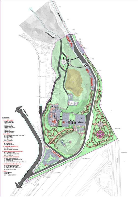
- Bản đồ định hướng không gian kiến trúc cảnh quan;
.jpg)
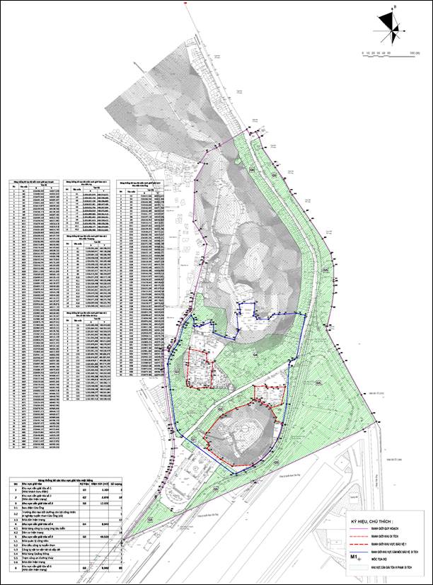
- Bản đồ xác định các khu vực bảo vệ và cắm mốc giới di tích.
.jpg)
(theo quangninh.gov.vn/)